Быстровозводимые пролетные строения повышенной заводской готовности

Современные промысловые дороги в нефтегазовой отрасли требуют надежных, быстро возводимых и экономичных мостовых решений. Разработанные пролетные строения из прокатных двутавров обеспечивают высокую степень заводской готовности и полное соответствие требованиям СП 35.13330. Благодаря этому конструкция подходит не только для промысловых зон, но и для применения на региональных и технологических дорогах в любых климатических условиях.

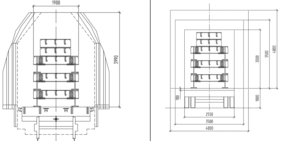
Описание технического решения

Пролетное строение представляет собой разрезную балочную конструкцию длиной до 21 м со сборной железобетонной плитой проезжей части.

Пролетное строение имеет в поперечном сечении главные балки из прокатных двутавров 70Ш1 по ГОСТ 35087-2024 с усилением нижнего пояса в виде листа толщиной 25 мм. Между собой главные балки объединены поперечными балками в виде половины двутавров 70Ш1 по ГОСТ 35087-2024. Расстояние между главными балками поперек моста составляет 1600 мм. К верхнему поясу главных балок по всей длине прикреплен лист настила толщиной 14 мм, включенный в общую работу и подкрепленный продольными ребрами 190х16. Сборка элементов пролетного строения осуществляется на высокопрочных болтах М22 по ГОСТ Р 53664-2009 с усилием натяжения 220 кН.

Схема допускает применение габаритов Г-7,5 и Г-6,5, с вариантами исполнения со служебным проходом или без него. При изменении габарита к пролетному строению добавляются только консоли.

Конструкция рассчитана на нагрузки А14 и Н14 по ГОСТ 32960-2014, с возможностью эксплуатации в ветровых и снеговых районах любой категории, включая сейсмичность до 9 баллов. Срок службы сооружения — не менее 30 лет.

Ключевые преимущества

  • Скорость монтажа: укрупненные блоки заводской готовности позволяют выполнить сборку без сварки на объекте, на болтах М22 с контролируемым натяжением;
  • Унификация: пролетные строения могут применяться для всех типоразмеров габаритов и допускают адаптацию под любые опорные части и пролетные схемы;
  • Атмосферостойкая сталь: В случае применения 14 ХГНДЦ обеспечивается эксплуатация без окраски даже в северных климатах;
  • Экономичность: использование прокатных профилей снижает стоимость металлоконструкций до 15% по сравнению с аналогичными вариантами на трубах или сварными решениями;
  • Транспортировка: укрупненные элементы не выходят за автодорожные и железнодорожные габариты.

Условия применения

  • Тип сооружения: разрезные металлические пролетные строения мостов;
  • Назначение: автомобильные мосты промысловых и региональных дорог;
  • Длина пролета: до 21 м;
  • Ширина проезжей части: 6,5–7,5 м;
  • Тип покрытия: сборная железобетонная плита по ГОСТ Р 56600-2015, ГОСТ 21924-2024;
  • Нагрузки: А14 и Н14 по ГОСТ 32960-2014, с возможностью эксплуатации в ветровых и снеговых районах любой категории;
  • Сейсмичность: до 9 баллов;
  • Климатическое исполнение: обычное, северное А, северное Б;
  • Срок службы: 30 лет.

Конструктивные элементы

Элемент конструкции

Профиль / Тип

Главная балка

двутавр 70Ш из стали 14ХГНДЦ / 15ХГНДЦ

Поперечная балка

½ двутавра 70Ш1 из стали 14ХГНДЦ / 15ХГНДЦ

Верхний настил

Лист 14 мм. с продольными ребрами 190х16, сталь 14ХГНДЦ / 10ХСНД

Усиления нижнего пояса

Лист 25 мм. из стали 14ХГНДЦ / 15ХСНД

Опорные части

РОЧ 200х250х62

Болтовые соединения

высокопрочные М22 по ГОСТ Р 53664-2009

Монтаж и транспортировка

Для транспортировки предусмотрен один поперечный монтажный стык. Элементы поставляются в укрупненном виде: базовый блок включает две главные балки с листом настила и поперечными балками, продольные ребра крепятся на заводе. В один контейнер помещается 3 блока по 12 м, что соответствует габаритам для железнодорожного и автомобильного транспорта.

Рис. 1 – Перевозка укрупненных блоков по две главные балки а/д транспортом.

Монтаж выполняется гусеничным краном грузоподъемностью 100 т. с площадки из сборных ж/б плит. Укрупненный блок длиной 21 м и весом 15.5 т. Поднимается с использованием траверсы массой 2.5 т.

Мостовое полотно

Железобетонные плиты: предварительно напряженные, по ГОСТ Р 56600-2015 и ГОСТ 21924-2024;

Основание под плиты: цементно-песчаная: песок по ГОСТ 8736-2014, портландцемент ПЦ 400-ДО по ГОСТ 10178-85);

Водоотвод: оцинкованный швеллер 100х80х5 по ГОСТ 8278-83;

Ограждения:

  • барьерное оцинкованное ограждение высотой 1,1 м (удерживающая способность 300 кДж);

  • перильное ограждение 1,1 м на химических анкерах М12 (для служебных проходов).

Антикоррозионная защита

Для обычных и северных исполнений «Б» применяется система покрытия №104 по СТО 01393674-007-2022:
  • 1-й слой — ИЗОЛЭП-mastic, 180 мкм;
  • 2-й слой — ПОЛИТОН-УР (УФ), 60 мкм;

При использовании атмосферостойких стали 14ХГНДЦ окраска не требуется.

Эффективность решения

По данным ТЭО, стоимость пролетных строений из двутавров ниже варианта из труб на 8–16% при равной прочности и сроке службы.

Экономия достигается за счет:

  • меньшего веса металлоконструкций;
  • отсутствия сварки при монтаже;
  • сокращения трудоемкости и времени сборки;
  • уменьшения затрат на обслуживание и окраску.

Такие мосты можно рекомендовать к применению в труднодоступных регионах, на временных и постоянных промысловых дорогах, а также на региональных трассах как оптимальное сочетание стоимости, долговечности и технологичности.

Состав тех. решения

Пролетные строения надземных пешеходных переходов Пролетные строения надземных пешеходных переходов
Конструкции пролетных строений в виде металлической однопролетной пространственной раскосной фермы.
Малые мосты из атмосферостойкой стали 14ХГНДЦ Малые мосты из атмосферостойкой стали 14ХГНДЦ
Конструкции малых мостов пролетом 12, 15 и 18 метров с элементами, не требующими антикоррозийной защиты окрашиванием.
Сталежелезобетонные пролетные строения автодорожных мостов Сталежелезобетонные пролетные строения автодорожных мостов
Конструкции сталежелезобетонных пролетных строений мостов с применением прокатных двутавровых балок.
Не нашли ответ на свой вопрос?
Напишите нам. Наши инженеры готовы обсудить задачу и дать профессиональную консультацию
На сайте используются cookie-файлы, которые помогают показывать Вам самую актуальную информацию. Продолжая пользоваться сайтом, Вы даете согласие на использование ваших метаданных и Cookie-файлов.
ИИ помощник
ИИ помощник
Онлайн-чат, обеспечивающий беспрепятственное и естественное общение и взаимодействие.
Задайте вопрос
Как рассчитать фланцевое соединение?
Как спроектировать фланцевое соединение?
Как рассчитать вес колонны?
Ваш ИИ-помощник
С помощью этого чата вы можете задавать вопросы и получать статьи, используя помощника на основе искусственного интеллекта.
Предложения по вопросам, которые можно задать нашему помощнику:
Как рассчитать фланцевое соединение?
Для расчета фланцевого соединения необходимо учитывать конструктивные и расчетные требования, установленные в СП 16.13330.2017 и СП 70.13330.2012.
Как спроектировать фланцевое соединение?
Для проектирования фланцевого соединения необходимо: Определить классификационные признаки и описание фланцевого соединения (ФС) в соответствии с п. 15.9.3 СП 16.13330.2017
Как рассчитать вес колонны?
Для расчета веса колонны можно использовать специализированные сервисы, которые выполняют подбор сечения колонн из двутавра для бескрановых и крановых зданий. Эти сервисы учитывают современные нормы и правила, такие как СП 16.13330.2017 и СП 20.13330.2016.