Снижение массы стального каркаса школы в сейсмическом районе

Заказчик обратился к нашему партнёру-проектировщику с запросом на перепроектирование. Первоначальный вариант стального каркаса не устраивал сложностью заложенных решений и высокой металлоёмкостью.

В этом проекте сложились все факторы, присущие реальному проектированию: сложность геометрии здания, сжатые сроки проектирования и реализации, сейсмическая активность и стеснённые условия строительной площадки.

Проект

Трёхэтажное здание частной школы в г. Новокузнецке расположено в районе с расчётной сейсмичностью 7 баллов. Проект был отмечен как «Лучший реализованный архитектурный проект 2024 года» по признанию РААСН.

Фасад школы Рисунок 1 — Фасад школы

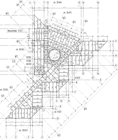
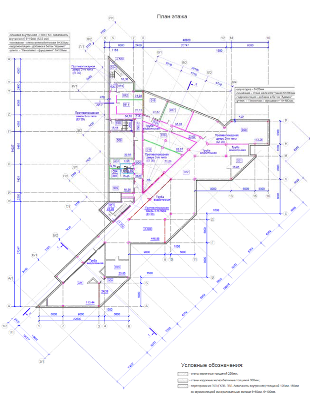
План здания Рисунок 2 — План здания

Исходная ситуация

На входе партнёр-проектировщик получил готовый проект со следующими характеристиками:

  • Конструктив: сложный (малый шаг балок перекрытия, жёсткие узлы), с многопролётными жёсткими рамами.
  • Соединения: все узлы стального каркаса предполагали использование монтажной сварки.
  • Масса металлокаркаса: 825 тонн.

Сложная геометрия здания была обусловлена конфигурацией земельного участка и требованиями по инсоляции.

Балочная клетка в исходном проекте Рисунок 3 — Балочная клетка в исходном проекте

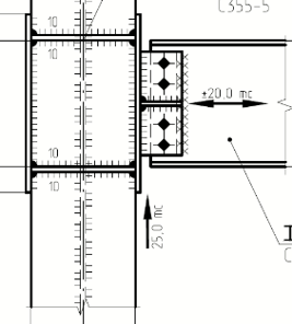
Узлы на монтажной сварке в исходном проекте Узлы на монтажной сварке в исходном проекте Узлы на монтажной сварке в исходном проекте Рисунок 4 — Узлы на монтажной сварке в исходном проекте

Задача

Перед инженерной командой стояли три ключевые задачи:

  1. Снизить вес стального каркаса, обеспечив при этом его надежность.
  2. Исключить монтажную сварку для упрощения работ на площадке.
  3. Сократить сроки монтажа несущего каркаса.

Предложенное решение

Партнёр-проектировщик полностью переработал конструктивную схему здания, применив современные подходы к проектированию стальных каркасов в сейсмических районах.

Ключевые изменения в конструктиве:

  • Новая схема. Вместо сложного конструктива с узлами на монтажной сварке заложили простую и надёжную схему с болтовыми соединениями.
  • Тип узлов. Основную часть узлов выполнили шарнирными на болтах, а количество жёстких узлов свели к минимуму.

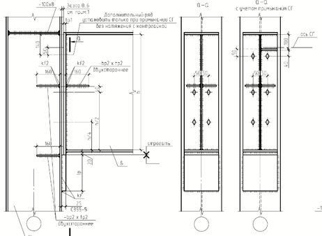
Предложенная конструктивная схема здания Рисунок 5 — Предложенная конструктивная схема здания

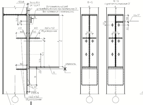
Жёсткие узлы Жёсткие узлы Рисунок 6 — Жёсткие узлы

Шарнирные болтовые узлы Шарнирные болтовые узлы Рисунок 7 — Шарнирные болтовые узлы

Для повышения несущей способности каркаса при сейсмическом воздействии и одновременного снижения его массы проектировщики применили следующие принципы и технологии:

  • Эффективные материалы и профили. Использование стали повышенной прочности (С390 вместо С255) и прокатных двутавров, которые хорошо работают при сейсмических нагрузках и позволяют образовываться пластическим шарнирам в сечении (в отличие от сварных аналогов локальная устойчивость стенок и поясов у них обеспечена).

    Прокат БАЛМАКС Рисунок 8 — Прокат БАЛМАКС

  • Использование вутов и локальных усилений.

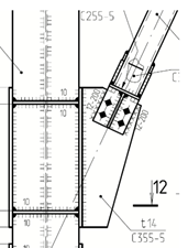
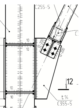
    Жесткий узел с вутом Рисунок 9 — Жесткий узел с вутом

  • Создание дисков жесткости. Моделирование жестких дисков покрытия и перекрытия для повышения общей устойчивости каркаса.

    Расчётная схема здания с продольными и поперечными диафрагмами Рисунок 10 — Расчётная схема здания с продольными и поперечными диафрагмами

  • Сталежелезобетонные конструкции. Интеграция железобетонной плиты перекрытия в работу стальных балок в качестве верхнего сжатого пояса, что позволяет сэкономить около 30% массы балок (в этом проекте не использовалось ввиду сжатых сроков, учитывалось только раскрепление верхнего пояса балок плитой).
  • Принцип концентрации материалов. Использование максимальных шагов рам и балок для оптимизации распределения материала.
  • Статически неопределимые схемы. Применение таких схем создает запас прочности и позволяет каркасу перераспределять усилия за счет развития пластических деформаций во время сейсмического воздействия.

    Переход от шарнирной рамы к жёсткой Рисунок 11 — Переход от шарнирной рамы к жёсткой

    При этом проектировщикам пришлось учесть сложные архитектурные требования: например, из-за планировки было недопустимо устройство вертикальных связей стального каркаса в поперечном направлении. Поэтому использованы многоэтажные П-образные рамы в качестве «ядра» жесткости:

    Обеспечение пространственной жёсткости здания П-образными рамами Рисунок 12 — Обеспечение пространственной жёсткости здания П-образными рамами

  • Эксцентриситеты крепления для создания возможности развития пластических деформаций в определённых зонах для диссипации энергии.

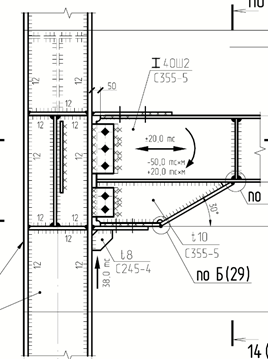
    Эксцентриситеты крепления для диссипации сейсмической энергии Эксцентриситеты крепления для диссипации сейсмической энергии Рисунок 13 — Эксцентриситеты крепления для диссипации сейсмической энергии

Результаты

Благодаря комплексному подходу и переработке проекта, удалось добиться существенного эффекта:

  • Масса каркаса снижена в 2 раза: с 825 тонн до 415 тонн.
  • Отказ от монтажной сварки: переход на преимущественно болтовые соединения позволил выполнить требование заказчика.
  • Сжатые сроки проектирования: разработка проекта КМ (конструкции металлические) была завершена за 1 месяц.
  • Успешное прохождение экспертизы: обновленный проект получил положительное заключение экспертизы.

Этот кейс демонстрирует, как грамотный инжиниринг и применение современных методов расчёта позволяют не только значительно оптимизировать проект по металлоемкости и срокам, но и обеспечить высокую надёжность здания в сложных сейсмических условиях.


Многоуровневый паркинг со стальным каркасом. Сравнение эффективности и прибыльности для девелопера Многоуровневый паркинг со стальным каркасом. Сравнение эффективности и прибыльности для девелопера
Инженерный разбор конструктивной схемы многоуровневого паркинга на стальном каркасе. Показываем, как принятые конструктивные решения формируют геометрию этажей, влияют на планировку и упрощают реализацию проекта
Замена поясов ферм пролетом 50 метров Замена поясов ферм пролетом 50 метров
Оптимизация сечений поясов балочного перехода за счёт перехода со спаренных уголков на прокатные двутавры С390, снижение металлоёмкости, трудоёмкости изготовления и рисков срыва сроков проекта
Оптимизация огнезащитных мероприятий в производственном здании Оптимизация огнезащитных мероприятий в производственном здании
Как за счёт подбора сечений с требуемой приведённой толщиной отказаться от огнезащиты металлоконструкций и сократить стоимость каркаса без нарушения требований по огнестойкости. Реальный кейс с расчётами и экономическим эффектом.
Не нашли ответ на свой вопрос?
Напишите нам. Наши инженеры готовы обсудить задачу и дать профессиональную консультацию
На сайте используются cookie-файлы, которые помогают показывать Вам самую актуальную информацию. Продолжая пользоваться сайтом, Вы даете согласие на использование ваших метаданных и Cookie-файлов.
ИИ помощник
ИИ помощник
Онлайн-чат, обеспечивающий беспрепятственное и естественное общение и взаимодействие.
Задайте вопрос
Как рассчитать фланцевое соединение?
Как спроектировать фланцевое соединение?
Как рассчитать вес колонны?
Ваш ИИ-помощник
С помощью этого чата вы можете задавать вопросы и получать статьи, используя помощника на основе искусственного интеллекта.
Предложения по вопросам, которые можно задать нашему помощнику:
Как рассчитать фланцевое соединение?
Для расчета фланцевого соединения необходимо учитывать конструктивные и расчетные требования, установленные в СП 16.13330.2017 и СП 70.13330.2012.
Как спроектировать фланцевое соединение?
Для проектирования фланцевого соединения необходимо: Определить классификационные признаки и описание фланцевого соединения (ФС) в соответствии с п. 15.9.3 СП 16.13330.2017
Как рассчитать вес колонны?
Для расчета веса колонны можно использовать специализированные сервисы, которые выполняют подбор сечения колонн из двутавра для бескрановых и крановых зданий. Эти сервисы учитывают современные нормы и правила, такие как СП 16.13330.2017 и СП 20.13330.2016.